NeedSpec.RU — поиск и рейтинг специалистов
Барлаухян Кристина Михайловна — проектирование и дизайн, 3D-дизайнер, дизайнер интерьера (Ростов)

Барлаухян Кристина Михайловна

Проектирование и дизайн, 3D-дизайнер, дизайнер интерьера

Паспорт не проверен
Дистанционно

О мастере

Образование

  • ДГТУ, Факультет ШАДИ, дизайнер архитектурной среды (брала академ отпуск) (с 2019 г.).
  • SpaceSchool, 3д моделирование, 2023 г.
  • SkillBox, дизайн жилых и коммерческих пространств (с 2025 г.).

Опыт

  • Статус самозанятого, ИП, небольшие проекты заказчикам — 4 года.
  • Помощник дизайнера (выполнение части проектов: чертежи, фотореализм визуализации, или 1+1) — 3 года.

Основной род деятельности

Районы выезда

Барлаухян Кристина Михайловна работает территориально: г. Ростов-на-Дону, а также принимает заказы онлайн.

Как связаться

Связаться с Барлаухян Кристиной Михайловной можно за пару минут. Нажмите на кнопку «Связаться с мастером» и заполните короткую форму.

Мы уточним несколько деталей, после чего специалист получит вашу заявку и свяжется с вами для уточнения деталей.

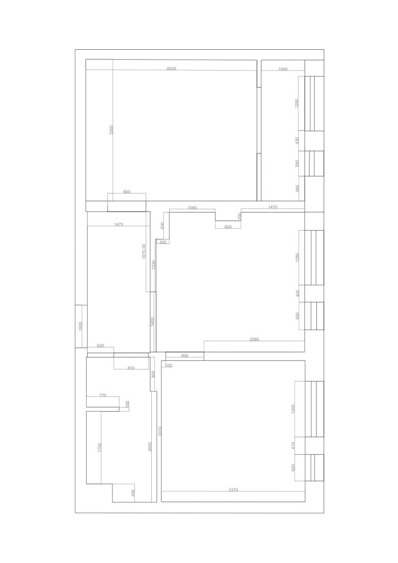
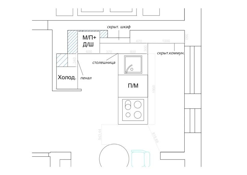
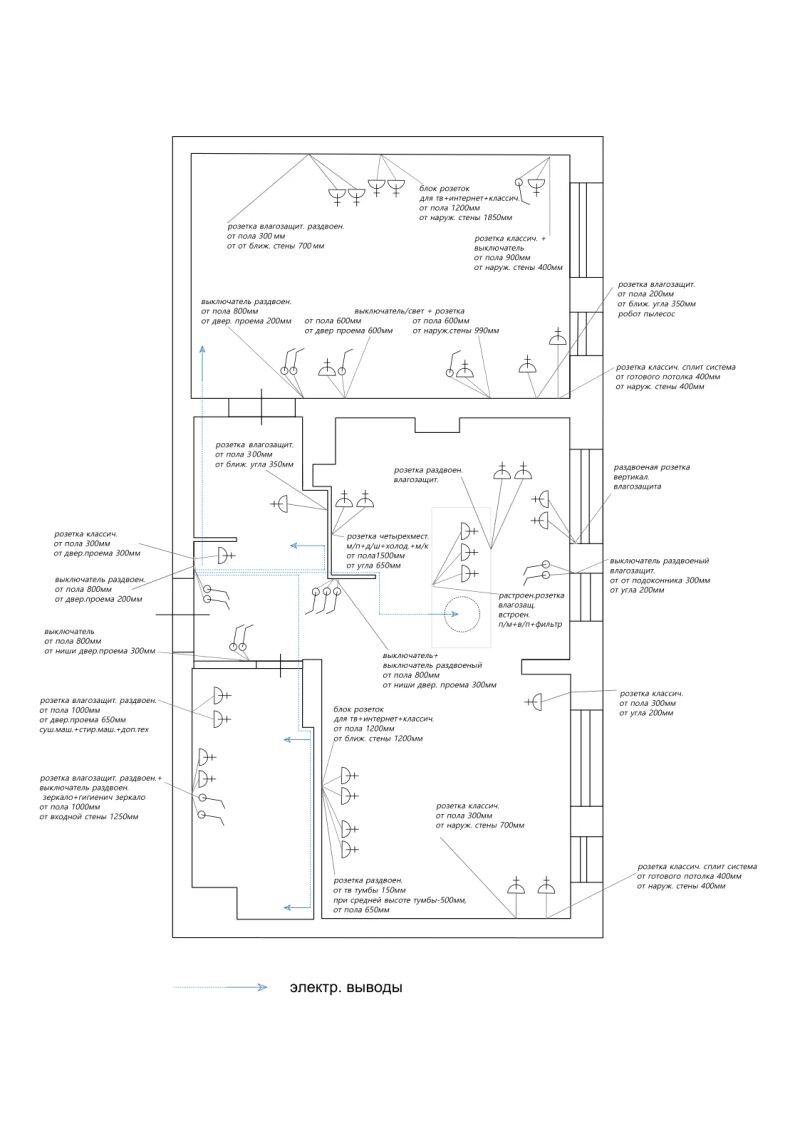
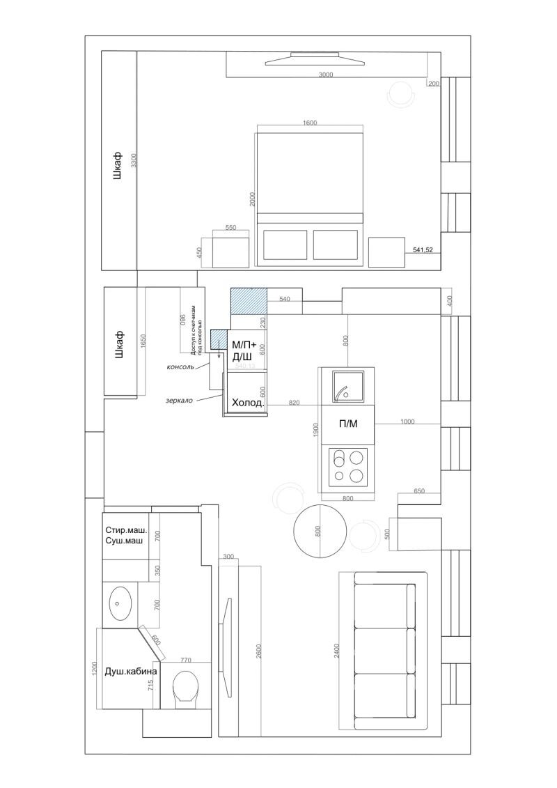
Примеры работ

Услуги и цены

  • Проектирование и дизайн по договорённости
  • Дизайн-проект по договорённости
  • 3D-дизайнер по договорённости
  • Визуализация интерьера 300 - 400 ₽ за кв. м
  • Визуализация мебели по договорённости
  • Предметная визуализация по договорённости
  • Дизайнер
  • Дизайнер интерьера 200 - 600 ₽ за кв. м
  • Декорирование интерьера 200 ₽ за кв. м
  • Чертёжные работы 200 ₽ за усл.
    Комплект чертежей (обмер, демонтаж, монтаж, сантехника, электрика, освещение, полы, потолки, планировка/зонирование)
    200/м2
  • Оцифровка чертежей 500 - 3000 ₽ за усл.
  • Дизайнеры уточняется при заказе

Отзывы о Барлаухян Кристине Михайловне

Пока нет ни одного отзыва об этом специалисте. Ваш отзыв может стать первым!
Уже пользовались услугами Барлаухян Кристины Михайловны?
Пожалуйста, оставьте Ваш отзыв. Он может стать решающим при выборе другими посетителями!
Пожалуйста, загрузите изображения, если считаете, что это поможет дополнить ваш отзыв. Это могут быть примеры выполненной работы, фотографии, скриншоты или другие материалы, которые сделают ваш отзыв более информативным. Загрузка изображений не обязательна, но может помочь ускорить процесс модерации и сделать ваш отзыв полезнее для других пользователей. Обратите внимание: Максимальный размер файла: 10 МБ. Допустимые форматы: JPG, PNG, GIF.
Перетащите изображение сюда Выберите изображения
Перед публикацией каждый отзыв проверяется на достоверность. Все отзывы, прошедшие проверку, публикуется без изменений "как есть".